阿南市上中町 ①号棟
印刷用画面
新築戸建
借入期間
年借入金利
%月々のお支払い例
円※月々のお支払い例は金融機関や商品によって借入金額の条件は異なります。詳しくは店舗までお問い合わせください。
| 所在地 | 阿南市上中町中原 |
|---|---|
| 交通 | |
| 学校区 | 阿南市立中野島小学校 708m
阿南市立阿南第一中学校 1255m |
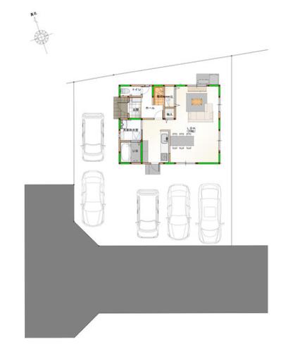
| 間取り | 3LDK |
POINT
〈構造・仕様〉
オール電化・耐震等級3相当・ZEH仕様・断熱性能5等級以上・一次エネルギー消費量6等級以上
〈保証制度〉
長期住宅保証・長期白蟻保証・アフターメンテナンス・シックハウス対策
物件概要
所在地 |
阿南市上中町中原 |
価格 |
2,498万円 |
間取り |
3LDK |
|---|---|---|---|---|---|
築年月 |
2025年6月(築0年5ヶ月) |
土地面積 |
185.78m2(56.19坪) |
建物面積 |
103.02m2(31.16坪) |
建物構造 |
木造 地上2階建て |
駐車場 |
カースペース有 5台 |
建物現況 |
完成済 |
建築確認番号 |
第1283号 令和7年3月12日 |
地目 |
宅地 |
都市計画 |
非線引 |
用途地域 |
無指定 |
建ぺい率 |
70% |
容積率 |
200% |
接道状況 |
南側 5.5m 一方 公道 接面:14.2m |
セットバック |
不要 |
私道負担 |
私道負担無 |
現況 |
地勢 |
平坦 |
引渡時期 |
相談 |
|
土地権利 |
所有権 |
取引態様 |
一般 |
国土法提出 |
不要 |
情報更新日 |
2025年11月3日 |
次回更新予定日 |
2025年11月26日 |
||
設備 |
公営水道 / 汚水:個別浄化槽 全居室フローリング / 全居室収納 / 床下収納 / ウォークインクローゼット / シューズインクローク / システムキッチン / カウンターキッチン / IHクッキングヒーター / グリル / 食器洗乾燥機 / 浄水器 / 浴室暖房 / 浴室1坪以上 / トイレ2ヶ所 / 温水洗浄便座 / 複層ガラス / オール電化 / 駐車3台以上可 / TVモニタ付インターホン / ディンプルキー / ダブルロックドア / 火災警報器(報知器) |
||||
制限事項 |
|||||
備考 |
- |
||||
所在地 |
阿南市上中町中原 |
|---|---|
価格 |
2,498万円 |
間取り |
3LDK |
築年月 |
2025年6月(築0年5ヶ月) |
土地面積 |
185.78m2(56.19坪) |
建物面積 |
103.02m2(31.16坪) |
建物構造 |
木造 地上2階建て |
駐車場 |
カースペース有 5台 |
建物現況 |
完成済 |
建築確認番号 |
第1283号 令和7年3月12日 |
地目 |
宅地 |
都市計画 |
非線引 |
用途地域 |
無指定 |
建ぺい率 |
70% |
容積率 |
200% |
接道状況 |
南側 5.5m 一方 公道 接面:14.2m |
セットバック |
不要 |
私道負担 |
私道負担無 |
現況 |
|
地勢 |
平坦 |
引渡時期 |
相談 |
土地権利 |
所有権 |
取引態様 |
一般 |
国土法提出 |
不要 |
情報更新日 |
2025年11月3日 |
次回更新予定日 |
2025年11月26日 |
設備 |
公営水道 / 汚水:個別浄化槽 全居室フローリング / 全居室収納 / 床下収納 / ウォークインクローゼット / シューズインクローク / システムキッチン / カウンターキッチン / IHクッキングヒーター / グリル / 食器洗乾燥機 / 浄水器 / 浴室暖房 / 浴室1坪以上 / トイレ2ヶ所 / 温水洗浄便座 / 複層ガラス / オール電化 / 駐車3台以上可 / TVモニタ付インターホン / ディンプルキー / ダブルロックドア / 火災警報器(報知器) |
制限事項 |
|
備考 |
- |
Loading...
物件周辺環境
小学校
阿南市立中野島小学校
708m(徒歩9分)
中学校
阿南市立 阿南第一中学校
1255m(徒歩16分)
スーパー
キョーエイ 上中店
1066m(徒歩14分)
コンビニ
ローソン 阿南上中町店
337m(徒歩5分)
ドラッグストア
ドラッグストアコスモス 宝田店
1294m(徒歩17分)
郵便局
阿南宝田郵便局
1833m(徒歩23分)
この物件に関するお問い合わせ
物件名|阿南市上中町
物件番号|5597

お電話やLINEでのお問い合わせの際は、
「物件名・物件番号」とお伝えいただくと、スムーズにご案内できます。
「物件名・物件番号」とお伝えいただくと、スムーズにご案内できます。












